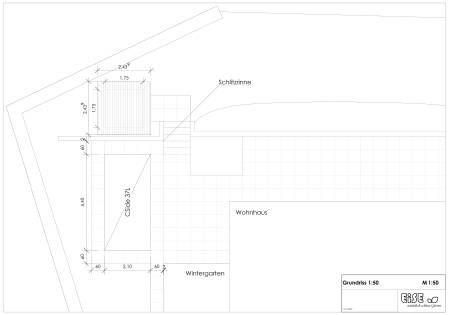
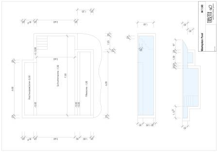
Planung & Gestaltung
Von der Idee bis zur Genehmigung und den letzten Details.
Von der ersten Skizze bis zum genehmigten Projekt begleiten wir Sie auf dem Weg zu Ihrem Wunschgarten. Wir entwickeln individuelle Entwürfe, erstellen realistische Visualisierungen und unterstützen bei der Abstimmung sowie Genehmigung Ihres Gartenprojekts. So entsteht eine durchdachte Planung, die Ästhetik, Funktion und Budget optimal verbindet – als sichere Basis für die spätere Umsetzung.











































